Work
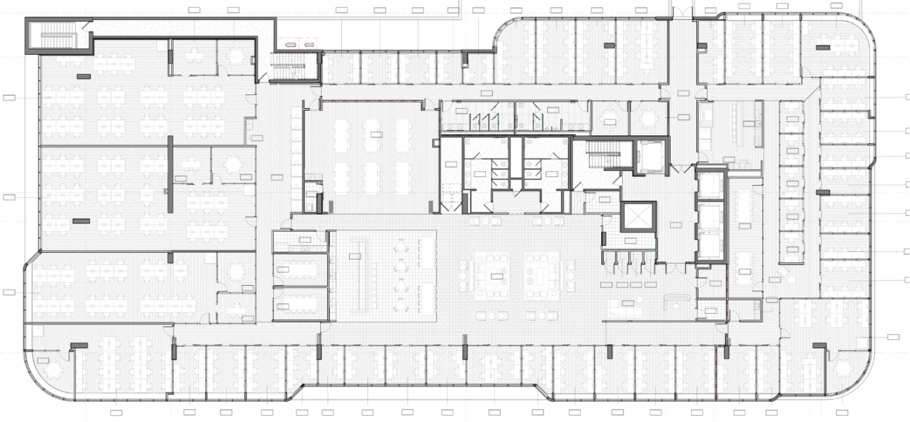
Mindspace Wynwood
Commercial | Wynwood, FL | 2023
-
Client
-
Services
- Interior Design
- Architecture
- Project Management
-
Team
-
Website